Standhouden
De geschiedenis van de in de dertiger jaren van de twintigste eeuw gebouwde kazematten op de westelijke Maasoever tussen Katwijk en Oeffelt.

Rivierkazemat zuid Katwijk

Ingang Op het bordes(7) achter de uit twee delen bestaande ijzeren deur bevind zich de ingang. In de ingang eindigt het schietgat voor een geweer. Door het schietgat kon de ingang vanuit de kanon ruimte(5) gedekt worden.
Mitrailleur ruimte Via een tweede tweedelige IJzeren deur komt men in de mitrailleur ruimte(6) De mitrailleur ruimte wordt bijna volledig in beslag genomen door de beton sokkel waarop de mitrailleur op een driepoot kon worden opgesteld. Onder de zware mitrailleur werden zandzakken geplaatst.
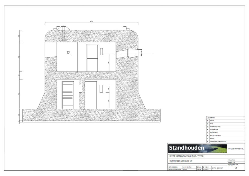
Bovenverdieping: 7 Bordes 1 Ingang 6 Mitrailleur ruimte voor de zware mitrailleur type Schwarzlose M.o8/15 5 Kanon ruimte voor het kanon type 5.l.50 no.2. 8 Open mitrailleur opstelling voor een lichte mitrailleur.
Onder verdieping: 2 Gang 3 Aggregaat ruimte 4 Munitie ruimte
Mitrailleur type Schwarzlose M.o8/15 kaliber 7,9 mm Opgesteld op affuit M25 Kanon type 5.l.50 no.2. kaliber 5 cm
De trap en deur op de foto zijn niet origineel. De deuren werden gemaakt van 20mm dik hoogwaardige staal. Omdat als gevolg van beschietingen deze konden gaan klemmen bestond een deur uit twee delen.
Kanon ruimte Via een derde tweedelige IJzeren deur komt men in de kanon ruimte(5) Hier stond het 5.l.50 no.2 kanon met snelvuur sluitstuk opgesteld. Via een rails waarvan op de foto de draad stangen te zien zijn kon met behulp van een loopkat en een opening in de achterwand het kanon in en uit de kazemat gehaald worden. In een rek tegen de muur lagen 50 patronen opgeslagen.
Door bezuinigingen was bij iedere brug maar één loopkat aanwezig.
Toegangsluik naar de onder verdieping. Via in de wand ingestorte klimijzers was de onder verdieping bereikbaar.
Gang Vanuit de gang(2) kom men naar de aggregaat ruimte(3) of naar de twee munitie ruimtes(4). Ook deze ruimtes waren voorzien van een uit twee delen bestaande ijzeren deur. Op de foto duidelijk zichtbaar de scharnier bevestigingspunten van de bovenste deuren.
In de gang bevind zich één 3” buis waardoor de kabel van de schel ingevoerd werd.(linker foto) In de aggregaat ruimte zitten drie 3” buizen bedoeld voor de bekabeling om de versperringen te verlichting. (rechter foto)
In de rivierkazemat was geen elektrische verlichting, hiervoor gebruikte men kaarsen of petroleumlampen die in de lamp nissen werden geplaatst. zelfs in de munitie ruimte. De lamp nis werd door middel van een deurtje met draadglas afgesloten.
Munitie ruimte In deze twee ruimtes(4) lag de munitievoorraad van het kanon en de mitrailleur opgeslagen. Voor het kanon bestond dit uit 500 granaten in de verhouding een brisantgranaat op twee brisantpantser granaten.
Rond het te bouwen kunstwerk werd een afscherming van twee meter hoogte geplaatst om de werkzaamheden aan het oog te onttrekken. Het werkterrein was met 1,20 meter hoge prikkeldraad afrastering afgezet. Op borden stond te lezen dat het maken van foto’s en schetsen ten strengste verboden was. Ondanks de geheimhouding was er een openbare inschrijving. Om de rivierkazemat Katwijk zuid te camoufleren voor waarnemingen vanuit de lucht lag er een laag aarde met gras op het dak. Aan de voorzijde was een constructie met balken en kippengaas gemaakt welke bedekt was met groen. Op de voorzijde was een patroon van lichte en donkere vlakken geschilderd om de locatie van de schietgaten te verbergen. Dit maskeren gebeurde op aanwijzingen van Kapitein J.L. Schrikkel, Maskeringsofficier bij Stellingbouw die in het burgerleven kunstschilder was. Op rivierkazemat Katwijk zuid werd zelfs een schietgat compleet met kanonsloop nageschilderd boven het echte schietgat.
10 mei 1940 Sergeant van der Meij was commandant van de zuidelijke kazemat, bijgestaan door negen korporaals. Onderstaande tekst is overgenomen uit de Militaire Spectator No3 Maart 1942. >>Bijzonder krachtig trad de vijandelijke artillerie op tegen de rivierkazemat Zuid en de kazematten 115 S en 114 G, welke vuur konden brengen op de plaats van het Maasveer en de naaste omgeving Toen het niet gelukte om de kazematten tot zwijgen te brengen, heeft de tegenstander, vermoedelijk omstreeks 11 uur, één zijner krachtigste gevechtsmiddelen in den strijd geworpen, n.l. één of meer pantserbestrijdingskanonnen van 8,8 cm. Alle drie de kazematten zijn door projectielen van dit geschut doorboord; de plaats van den vuurmond is op het terrein uit de door de projectielen gemaakte doorboringen met zekerheid vast te stellen; hij werd in stelling gebracht achter een heg op den Oostoever, onmiddellijk boven de veerpont. De rivierkazemat Zuid lag van ongeveer 5.30 tot 11.00 onder artillerievuur, dat evenwel niet veel schade aanrichtte. Na 11.00 ontving zij voltreffers, vermoedelijk van den hierboven genoemden vuurmond van 8,8 cm. De toestand werd nu hachelijk. Plotseling drong een projectiel door het schietgat in de kanonkamer, waar het detoneerde. Zes korporaals der politietroepen werden op slag gedood; het kanon was vernield en in de kazemat brak brand uit. Met 3 korporaals, waarvan 1 gewonde, en de bediening van den zware mitrailleur verliet Sergeant van der Meij de kazemat en begaf zich sprongsgewijze naar Katwijk, waar de gewonde werd verbonden en waar dekking werd gezocht. Toen het artillerievuur verminderde, meldde hij zich bij den Compagnie Commandant Kapitein van Hoogenhuize droeg den sergeant op om te trachten Grave te bereiken, hetgeen evenwel niet meer gelukte, daar Duitsche patrouilles reeds in den rug verschenen. Het groepje wist zich evenwel aan gevangenneming te onttrekken.<< De korporaals waarvan Sergeant van der Meij spreekt waren Korporaal Bronkhorst, korporaal Lijbers en de zwaar gewonde korporaal van der Boomgaard. Korporaals Bronkhorst en Lijbers werden tijdens de explosie door de openstaande deur naar buiten geslingerd en vielen van de trap. Lijst gesneuvelden rivierkazemat Zuid Korporaal politietroepen D. Beers Korporaal Politietroepen D.J. Compier Korporaal politietroepen P.M. Jaspers Korporaal politietroepen J.H. Pels Korporaal politietroepen A. Stoets Korporaal politietroepen D.J. Verplak Lijst met gewonden rivierkazemat Zuid Korporaal politietroepen M. van der Boomgaard (zwaar) Korporaal politietroepen van Baal (zwaar) Sergeant politietroepen J.G. van der Meij (licht) (Commandant op 10 mei) Aanwezig in rivierkazemat Zuid Korperaal politietroepen C.J. Suderee Korporaal politietroepen N. Bronkhorst Korporaal politietroepen W. Lijbers
De binnenmuren werden wit geverfd. Het ijzerwerk kreeg twee lagen menie en werd daarna bedekt met twee lagen chloor- rubberverf. Om condensatie op de staalconstructies tegen te gaan, werd isolerende kurk verf gebruikt. Nadat de bouw voltooid was werden er verschillende keren inspecties gehouden waarbij technische en tactische tekortkomingen naar boven kwamen. De muren van Katwijk noord bleken door te slaan en er kon geen munitie bij het kanon opgeslagen worden. Ook de verlichting liet zeer te wensen over. Dit probleem was in 1938 nog steeds niet opgelost. Geschikte Nederlandse lantaarns op batterijen werden niet gevonden. Meestal ontbraken ook panorama schetsen of afstandstabellen. in dit jaar werd ook vastgesteld dat de kans op richtfouten bij het kanon groot was. Dit omdat de richter in gebukte houding zijn werk moest doen, aan een zitplaats was niet gedacht. De inspecteur der Artillerie formuleerde een aantal wensen om de inrichting te verbeteren: elektrische verlichting met blauwe lampen, betere ventilatie, geluid demping door onder andere kokosmatten op de vloeren, verwarming en een voorhanden zijnde schietvoorraad van 50 patronen. Het is niet bekend of al deze wensen gehonoreerd zijn.
Bij het schieten met de mitrailleur kwamen kruitdampen vrij met een hoge concentratie koolmonoxide. De normale vullingsbus van het gasmasker was hiervoor niet afdoende, daarom werd het gasmasker aangesloten door middel van een flexibele slang op een buis die in verbinding stond met de buitenlucht. Eventuele door de vijand gebruikte strijd gassen werden uit de buitenlucht gefilterd door de vullingsbus. De buitenlucht werd door de kazemat- luchtaansluiting, de slang en de vullingbus aangezogen. In de overige buizen waren voorzieningen (kruizen en extra bochten) aangebracht om te voorkomen dat granaten of explosieven naar binnen gegooid konden worden.
Achter in de kanon ruimte zit een gat in het dak voor een door de firma Zeiss ontworpen monoculaire periscoop (met regen dakje). Door het uitbreken van de oorlog zijn deze echter niet meer geleverd.
Koude Oorlog Tijdens een deel van de Koude Oorlog was Rivierkazemat zuid in gebruik als telefoon post en stond in verbinding met MCP (Main Command Post) Grave.
De kosten voor twee stuks rivierkazematten bij Katwijk en twee stuks rivierkazematten bij Oeffelt waren geraamd op 50.250 gulden (22.802 euro). Deze begrote kosten zijn zonder de middelen die door de landmacht geleverd werden zoals wapens en munitie.
2014 De eerste voorbereidingen zijn getroffen om van Rivierkazemat zuid een expositieruimte te maken welke in mei 2015 geopend zal worden. Henny Radt, oud militair en Theo Hoefs, voorzitter van de vereniging van oud Militairen pakte ergens in augustus 2014 het plan op om eens te gaan kijken bij deze kazemat. ondertussen huren zij de kazemat die eigendom is van stichting Militair Erfgoed voor de komende 5 jaren.
1936 Rivierkazemat Katwijk zuid werd gebouwd in het kader van de “Strategische Voorzorgen’. Nadat de mogelijkheid van een strategische overval was onderkend en erkend, werd geconcludeerd dat bij overgangen over de grote rivieren en andere belangrijke waterwegen versterkingen noodzakelijk waren. Om de noodzakelijkheden voor het weerstaan van een dergelijke dreiging vast te kunnen stellen werd een ‘Bruggen commissie’ in gesteld die op 4 september 1935 een verslag uitbracht met aanbevelingen, deze aanbevelingen werden echter maar voor een deel overgenomen. Een van de aanbevelingen die wel werd overgenomen was het bouwen van twee verdedigingswerken bij elke brug over de Maas. In Katwijk werden deze op circa 200 meter links en 135 meter rechts van de spoorbrug (Venlo - Nijmegen) gebouwd. Het ontwerp van het Technisch Bureau van de Inspectie der Genie werd uitgewerkt op grond van plaatselijke omstandigheden door de Eerstaanwezend Ingenieur te Nijmegen die ook verantwoordelijk was voor de openbare aanbesteding en het toezicht op de bouw. Op 10 februari 1936 geeft het gemeentebestuur van Linden een bouwvergunning af aan het Departement van Defensie voor de bouw van twee type B kazematten met ieder twee verdiepingen. In Nijmegen wordt op 26 februari 1936 de aanbesteding gehouden voor de bouw van vier kazematten van gewapend beton waarvan twee te Katwijk (Linden) en twee te Oeffelt. Van de 26 inschrijvers is L.v.d. Plas uit Rosmalen met 32.998 gulden (14.974 euro) de laagste inschrijver, M.J. Ebben uit Beers is de hoogste met 47.438 gulden (21.526 euro). De kosten voor de bouw werden betaald uit het Defensiefonds.
1942 In de lente van 1942 begon Duitsland een gebrek aan staal te krijgen voor de oorlogsindustrie. Schietgatblinden en deuren worden naar Duitsland afgevoerd. Op 20 & 21 april 1942 schrijven er mensen hun naam met potlood op een muur van de gang op de onder-verdieping. ze zijn het duidelijk niet eens met de Duitse bezetting. O.Z.O. schrijven ze. Oranje Zal Overwinnen.
Om bruggen te verdedigen tegen luchtaanvallen plaatste de Duitsers op diverse rivierkazematten in Nederland afweergeschut. Er is geen bewijs (of nog geen bewijs) gevonden of dat in Katwijk ook zo was.
Samen met enkele leerlingen van basisschool de Zevensprong onthult de burgemeester het informatiebord. De expositie is op afspraak te bezichtigen in de rivierkazemat aan de Everdineweerd te Katwijk. U kunt daarvoor 06-48356368 bellen en de voicemail inspreken, zij nemen dan contact met u op voor een afspraak.
2015 Januari
Standhouden.nl
Standhouden.nl
Standhouden.nl
Standhouden.nl
Standhouden.nl
Standhouden.nl
Open mitrailleur opstelling
Deze open mitrailleur opstellingsplaats (8) was bedoeld voor een lichte mitrailleur die vuur kon uitbrengen op het pontveer.
Standhouden.nl Standhouden.nl Standhouden.nl
1941 De opzichter van Frontificatie, W. Horstmann maakt een verslag van de beschietingen van de kazematten in de dienstkring. >>Kazemat Katwijk Zuid is rechtstreeks beschoten met 8,8 cm geschut. De schootsafstand was zeer gering. De projectielen zijn, na meerdere treffers, tot een diepte van 1,5 m in het beton doorgedrongen. Van deze beschieting heeft de kazemat inwendig niet geleden, de betondekking op het wapeningstaal is hier niet gescheurd of afgesprongen. De kazemat is buiten gevecht gesteld door een treffer in het schietgat, die door een staande spoorrail, door het beton en langs de stalen schietplaat in de kazemat is binnengedrongen. Dit schot had niet deze uitwerking gehad, als de schietplaat breder was geweest en de gehelen voorwand bedekt had.<< Door hem getekend op 8 april 1941 te Nijmegen.
Mei Op 10 mei werd de expositie in rivierkazemat Katwijk zuid geopend door de burgemeester W.A.G. Hillenaar.
Foto Privécollectie Hein Veld
Standhouden.nl
8
Standhouden.nl
7
5
6
Rivierkazemat Katwijk Zuid Kazemat voor zware mitrailleur en pantserafweergeschut
Model : type B Ontwerp : Op basis van richtlijnen van het TB van de IdG uitgewerkt door de Eal te Nijmegen Tekening nummer : Km Bouwjaar : 1936 Schietrichting : Frontaal Schootsveld kanon : 30· Schootsveld mitrailleur : 30· Weerstandvermogen : W.12-15 deels W15-21 Muurdikte dak / front : 0.80m / 1.50 gewapend beton Bewapening : Schwarzlose M.08/15 en een pantserafweergeschut 5 No.2 (No.74) Bezetting : Korps Politietroepen, 12 man / 26 R.I. 5 man Kosten (ongeveer) : 32.998 gulden (14.974 euro) Rijksmonument nummer : 420215 Coördinaten : 51.753167 N 5.870764 E Bijzonderheden : Kazemat met twee verdiepingen
Privécollectie Raymond Graveel
Rivierkazemat Katwijk Zuid